本文
07-13
募集中(内覧可能)

空き家バンク登録情報・その他写真 [PDFファイル/424KB]
西川町大字海味
売却
630万円
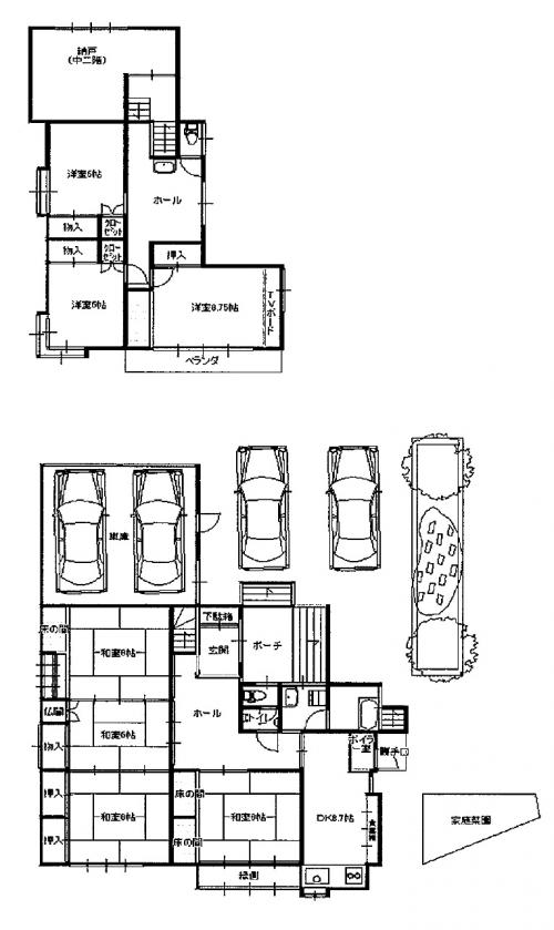
木造2階建て・7SDK

257.81平方メートル(延床面積:220.83平方メートル)
1989年10月
多少の補修が必要
水道:上下水道
電気:引込済
ガス:LPガス
2台分
車庫(2台)
仲介業者:RoomruBe
物件の内覧や購入をご希望される方は、事前に利用登録が必要です。
利用登録がお済みの方からのご案内となりますので、ご了承ください。
詳しくは西川町空き家バンクの利用方法をご覧ください。