ページの先頭です。 メニューを飛ばして本文へ
現在地 トップページ > 組織から探す > 西川町役場 > 総務課 > 行政財産(廃校舎ピロティ)を貸出しします

行政財産(廃校舎ピロティ)を貸出しします


本文

印刷ページ表示 更新日:2026年3月2日更新

募集概要

令和8年4月1日より廃校舎ピロティ(旧岩根沢小学校および旧大井沢小学校)の貸出しを行います。
駐車場等で使用される場合、申請が必要です。

募集要件

町内に住所を有する、または居住している方

貸付料

町規則で定める額

※詳細はお問合せください。

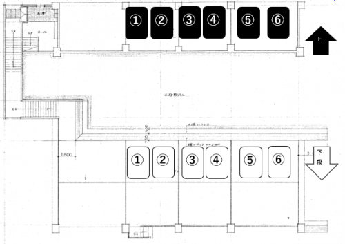
貸出箇所図面

旧岩根沢小学校(12区画)

旧岩根沢小学校貸出し箇所図

旧大井沢小学校ピロティ(2区画)

旧大井沢小学校貸出し箇所図

 

※貸出箇所は変更になる場合がございますので、ご了承ください。

 

申込方法

申請書に必要事項ご記載の上、総務課危機管理係へご提出ください。
​様式は西川町役場総務課でも配布しています。

申込締切:令和8年3月16日(月曜日)

申請書様式(廃校舎ピロティ用) [Wordファイル/34KB]

記載例 [PDFファイル/78KB]

その他

  • 申込多数の場合は、抽選となりますので、あらかじめご了承ください。
  • 年度途中で空きがある場合は、随時貸付を受付予定です。